
Originally set in London in the 1960s, but influenced by the 1970s American groovy aesthetic. Scenic designer wanted lots of green and brown in the design.

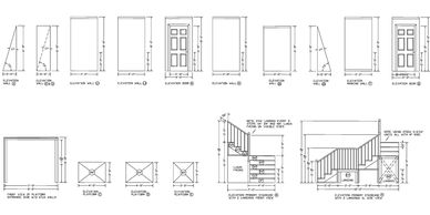
The script called for a two-story set. Majority of the walls and door units were pulled from the extensive stock at GC, but atypical units required building.

All drafts and color renderings were provided by the technical director and advised by the Shop Supervisor/Set Design Professor. The scenic designer provided a sketch.
4'-0" W x 6'-8" H stud wall construction. All stud walls will be faced with fabric instead of luaun.
V4 Final paint elevations created by Scenic Paint Charge and approved by the Co-Scenic Designer. Wanted to use the 1970's American groovy aesthetic but in a green palette instead of the traditional warm colors.
Greensboro College Theatre (Jan. 2026)
Director/Fight Director: David Sebren
Assist. Director: Izzy Surles
Stage Manager.: Chandler Poindexter
A.S.Ms.: Casey Tidwell, Hailey Adams
Technical Director: Jordan Ingersoll
Assist. Technical Director: Caitlin Queen
Co-Scenic Designers: Jackie Deane & Jordan Ingersoll
Lighting Designer: Jill Marie Harris
LD Assistant Jacklyn Glass
LD Supervisor: Sean Saari
Costume Designer: Casey Pate
Scenic Charge Artist: Jordan Ingersoll
Asst. Charge Artist: Avery White
Props Designer: Sydnei D.
Props Supervisor: Caitlin Queen
Sound Designer: David Slifer